
안녕하세요
오늘은 위례 A2-7 신혼희망타운 공공분양에 관한 청약정보와 2023년 12월 27일 수요일 올라온 모집공고에 대해서 자세하게 알려드리겠습니다.
21년 7월에 사전 청약을 먼저 한 위례 신혼희망타운은 이제 본청약 공고가 나왔습니다.
위례 신희타는 총 1,307세대이며 본 청약은 87세대를 모집하고 있습니다.
분양가는 전용 55m2(23평) 기준 약 6억 3,000만원으로 나왔습니다.
□ 위례 A2-7 신혼희망타운 개요
□ 지역조감도 /교통망도
□ 지구조감도 / 토지이용계획
□ 입주자 모집공고 청약 시기 / 분양 일정
□ 단지조감도 / 조경배치도
□ 시스템과 인테리어
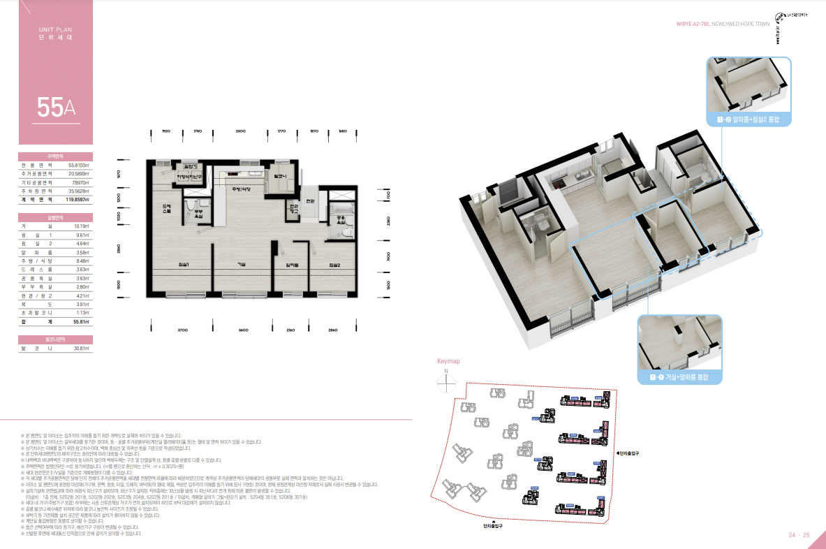
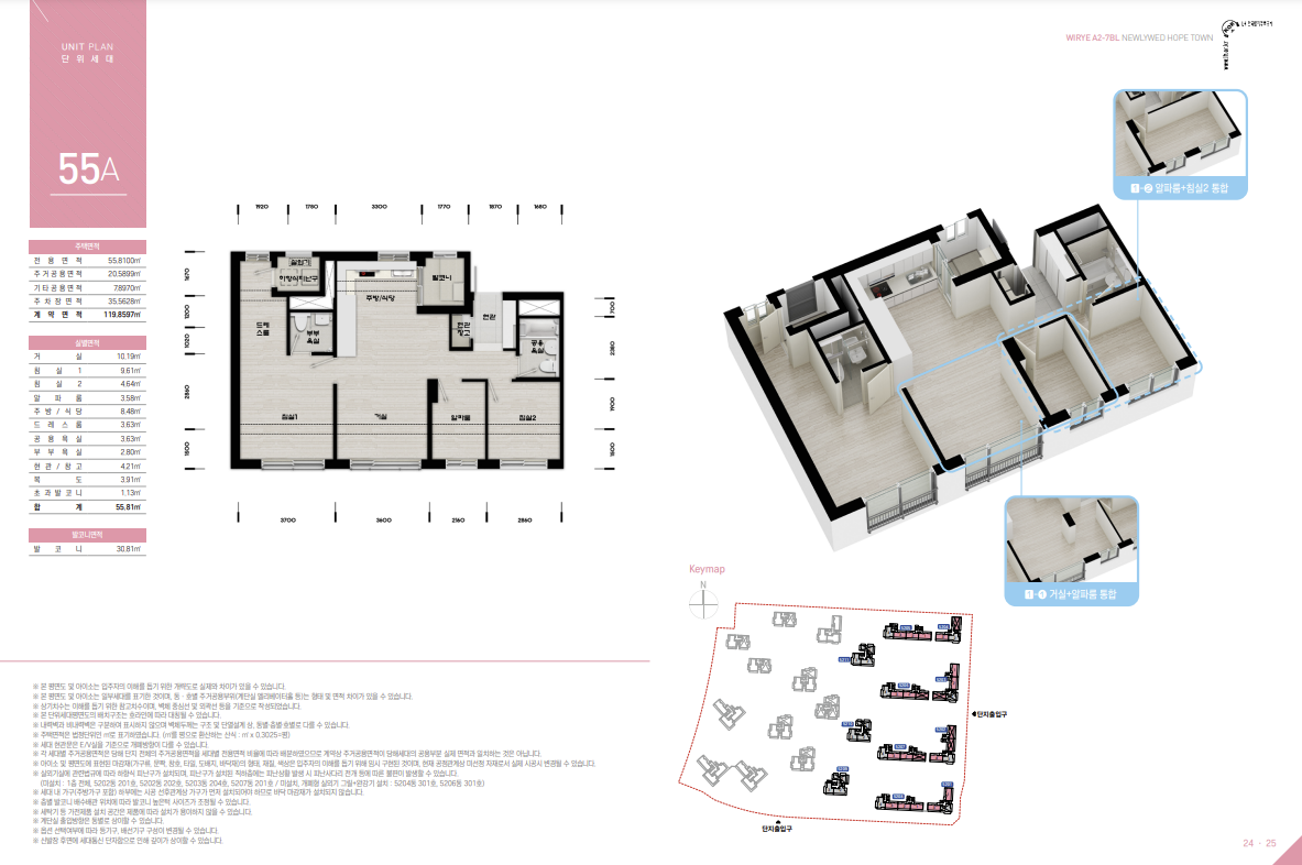
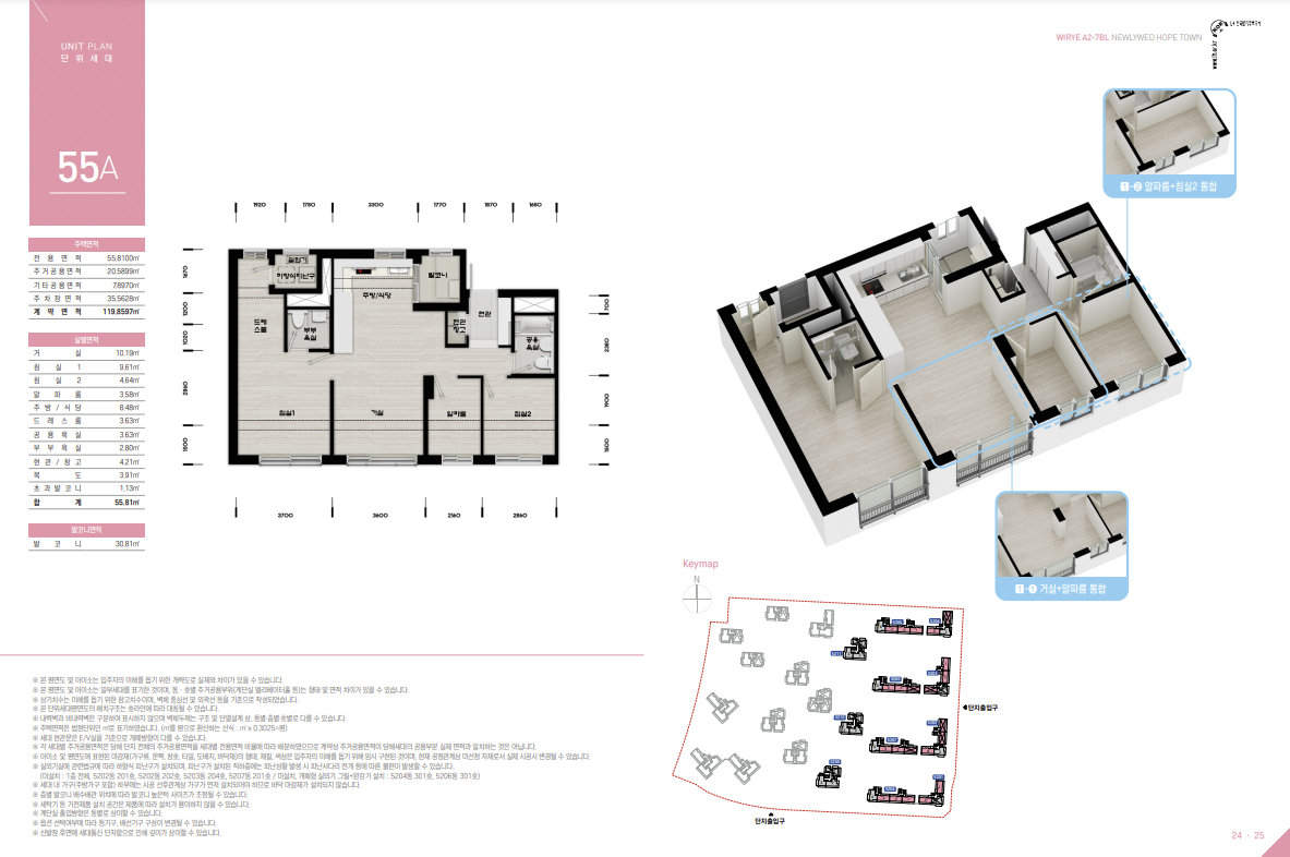
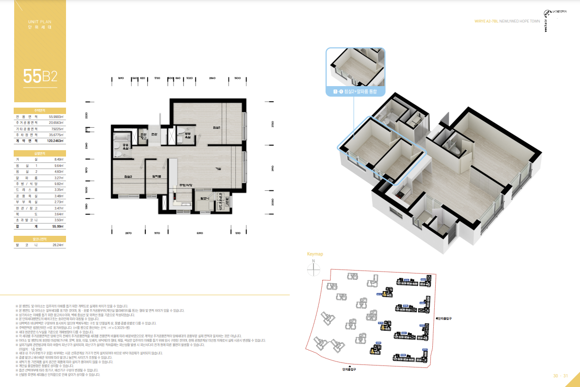
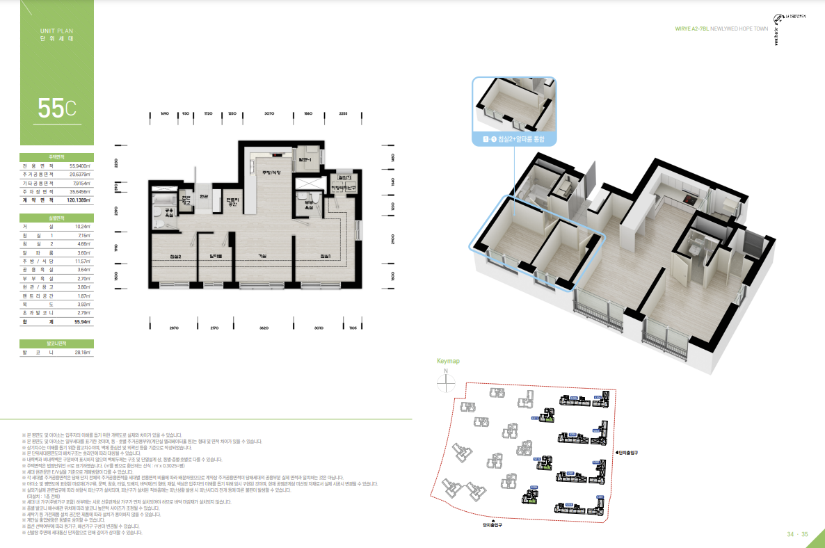
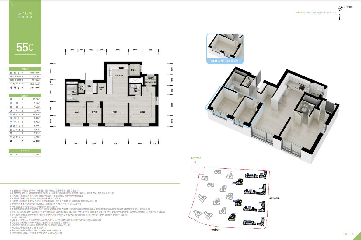
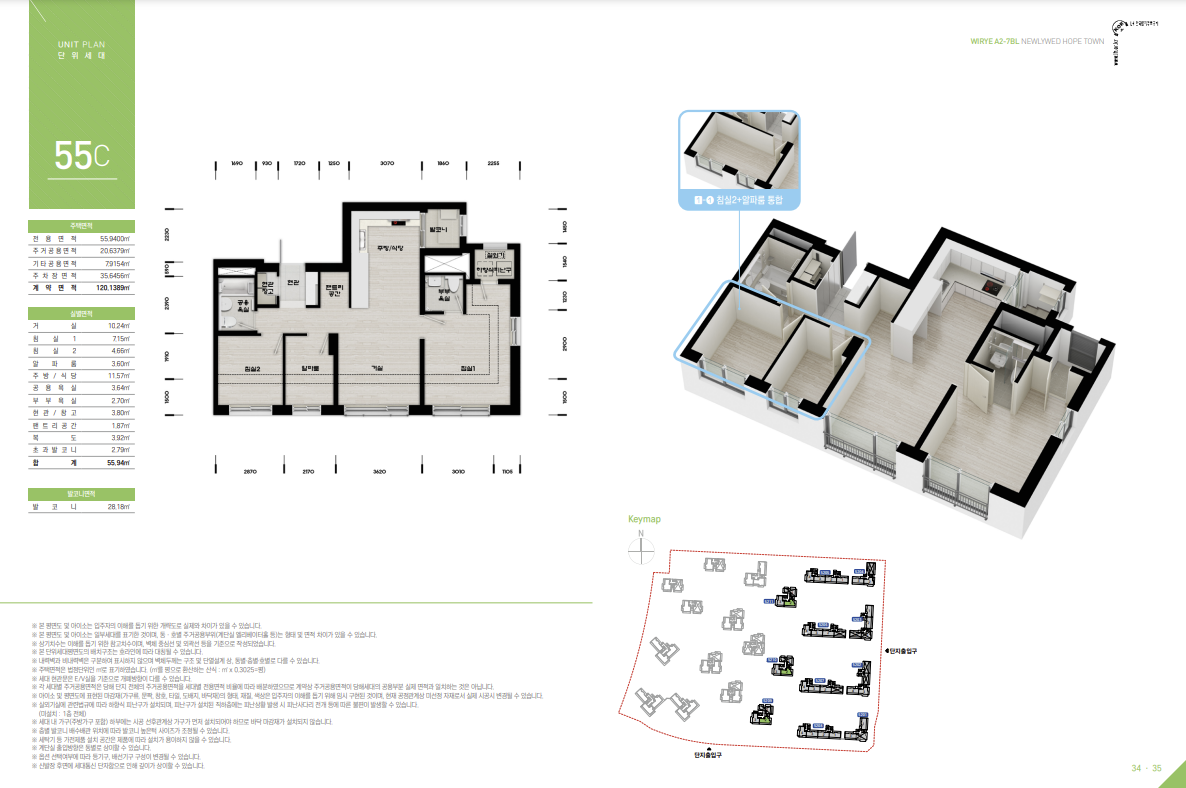
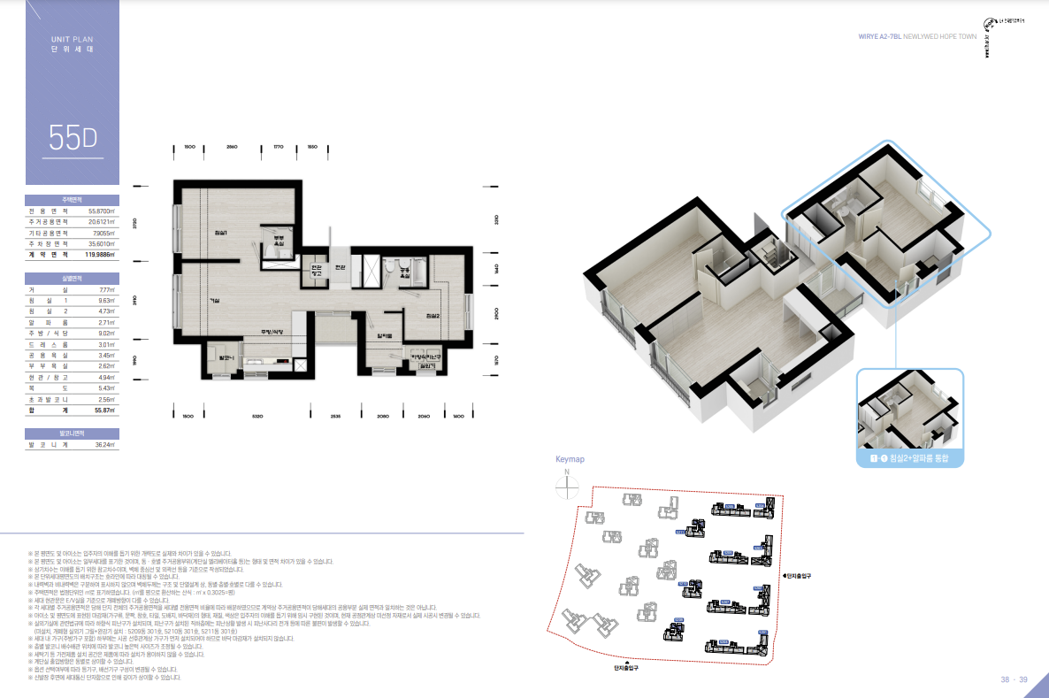
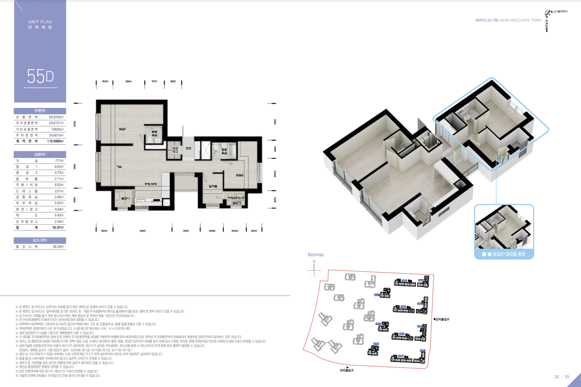
□ UNIT플랫
□ 단지배치도 / 커뮤니티시설
□ 동호배치도 / 마감재시설내역
□ 위례지구 A2-7 블록 신혼희망타운 입주자 모집공고 (신혼희망타운 신청자격)
먼저 위례 A2-7 신혼희망타운에 대해 자세히 알아보면서 위례 신혼희망타운의 팜플렛을 보여드리겠습니다.
위례 A2-7 신혼희망타운 팜플렛



위례 A2-7구역에 위치한 신혼희망타운입니다.
* 주소 : 경기도 성남시 수정구 창곡동 A2-7 블록
* 일반공급 : 87세대
* 건축규모 : 지하 2층~ 지상 23층 11개동 1,309세대
* 입주시기 : 2026년 12월
* 시공사 : GS건설, 동부건설, 계룡건설, 대보건설


총 1309세대 중 군관사는 650세대이고 440세대는 신혼희망타운, 219세대는 향후 행복주택을 공급할 예정이라고 합니다.
이번 청약은 위례 신혼희망타운 87세대입니다.
위례 A2-7 신혼희망타운 분양 일정
* 2024년 1월 9일 10시 ~ 1월 10일 17시 : 사전청약 당첨자 접수
* 2024년 1월 11일 10시 ~ 1월 12일 17시 : 본청약 접수
* 2024년 1월 30일 16시 : 본청약 당첨자 발표
* 2024년 2월 5일 ~ 2월 6일 : 서류 제출
* 2024년 5월 16일 ~ 5월 17일 : 계약 체결
위례 신혼희망타운 단지 조감도


* 교통 : 8호선 남위례역 (도보 20분)
* 학군 : 위례푸른초등학교 (도보 1분), 한빛중학교, 한빛고등학교 (도보10분이내)
* 환경 : 창곡천, 위례근린공원, 스타필드 등등
위례신도시는 창곡천이 흘러 산책하기에도 아주 좋고 다양한 인프라가 형성되어 있습니다.
분양가 및 분양세대
발코니 확장비를 포함한 분양가입니다.
* 55A : 6억 2,744만원
* 55B1 : 6억 2,890만원
* 55B2 : 6억 2,901만원
* 55C : 6억 2,833만원
* 55D : 6억 2,847만원





단지 평면도











청약 주요 내용
* 성남시 1년이상 거주자 30%, 경기도 6개월 이상 20%, 수도권 50%
* 당첨시 입주까지 무주택세대구성원 유지
* 수익공유형 모기지 장기대출상품 가입 필수
* 예비입주자 300% 선정
* 재당첨제한 10년
* 전매제한 3년
* 거주의무 5년
* 중도금 이자후불제
* 자산 3억 7,900만원 이하
수익형 모기지란?
금리 : 연 1.3% 고정금리
대출한도 : 최대 4억원 (주택가격의 70% 이내)
대출기간 : 1년거치 19년 또는 1년거치 29년 원리금 균등상환
위례지구 A2-7블록 신혼희망타운 공공분양 입주자 모집 공고





























위례A2-7 신혼희망타운 입주자모집공고문과 팜플렛을 함께 첨부해드리겠습니다.
제 글이 도움이 되셨다면 공감과 댓글 부탁드립니다
좋은 하루 되세요! ^^
'모든 꿀정보 > 생활 꿀정보' 카테고리의 다른 글
| 30~50대 재테크 방법 | 노후 준비를 위한 실천 가능한 투자 습관 (2) | 2025.08.20 |
|---|---|
| 이렇게 했더니 항공권 50%가 절약되네요! 항공권 싸게 예매하는 방법 (1) | 2025.07.06 |
| 하루 10분 투자로 블로그를 수익화시키자! 블로그 부업 ChatGPT 자동 글쓰기 시작하기 바로 오늘부터 (1) | 2025.05.29 |
| 가을의 색깔은 이렇죠 (0) | 2024.11.22 |
| 엠지텍 오픈형 이어폰 골전도 이어폰을 대체할 신박한 이어프리오픈 리뷰 (0) | 2024.03.19 |